首頁
公司介紹
新聞中心
組織機構
服務理念
售後服務
聯系我們
産品中心
jtgk.png

産品中心

GUQ氣動高真空球閥

您的位置:閥門 - 球閥 - GUQ氣動高真空球閥 更新時間:2026-01-12 02:01:03
GUQ氣動高真空球閥
    • 質量安全:壓力、材質、密封等全方位檢測确保質量過關!
    • 價格比較:在相同品質的情況下,廠裏直銷,更具有優勢!
    • 交貨快捷:常規産品現貨供應,生産加工銷售一條龍服務!
      上海凱利科閥門緻力于高品質閥門的設計、研發、生産銷售服務于一體的大型閥門企業,科技創新,永不止步,與您攜手共創輝煌...

    • 産品描述
    • 在線詢價
    • 技術咨詢
    GUQ氣動高真空球閥GUQ氣動高真空球閥

    GUQ氣動高真空球閥是通過電磁換向閥改變氣路方向,控制執行氣缸來驅動球閥,達到接通或切斷真空(壓力)系統管道路中的介質流。應用于真空、乳制品、酒業、生物工程、食品、制藥、飲料、化妝品及化工領域。可選配反饋信号裝置及電氣閥門定位器。

    産品名稱: 氣動高真空球閥 産品型号: GUQ
    公稱通徑: DN10~DN300 結構形式: 球形
    公稱壓力: 1.6Mpa~6.4Mpa 連接方式: 法蘭、螺紋、快卸法蘭、活接
    适用溫度: ≤180ºC 驅動方式: 手動、氣動、電動
    閥體材質: 鑄鋼、不鏽鋼 制造标準: 國标GB、德國DIN、美國API、ANSI
    适用介質: 空氣、氣體、油、液體 生産廠家: 上海凱利科閥門有限公司

    産品說明

    GUQ氣動高真空球閥是通過電磁換向閥改變氣路方向,控制執行氣缸來驅動球閥,達到接通或切斷真空(壓力)系統管道路中的介質流。應用于真空、乳制品、酒業、生物工程、食品、制藥、飲料、化妝品及化工領域。可選配反饋信号裝置及電氣閥門定位器。

    主要零件材料

    閥體、閥蓋、閥杆:不鏽鋼
    密封件:四氟乙烯、丁腈橡膠、氟橡膠、PPL。

    螺紋連接結構圖

    螺紋連接的外形及連接尺寸(mm) (JB919)

    Model型号 DN G H E L
    GUQ-10(G) 10 1/4" 153 104 68
    GUQ-16(G) 16 1/2" 155 104 72
    GUQ-20(G) 20 3/4" 160 104 82
    GUQ-25(G) 25 1" 163 140 90
    GUQ-32(G) 32 1-1/4" 180 140 112
    GUQ-40(G) 40 1-1/2" 186 140 120
    GUQ-50(G) 50 2" 233 164 145
    GUQ-63(G) 63 2-1/2" 272 164 185
    GUQ-80(G) 80 3" 351 190 210
    GUQ-100(G) 100 4" 370 190 268

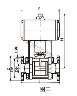
    活套法蘭連接結構圖

    活套法蘭連接的外形及連接尺寸(mm) (GB6070)

    Model型号 DN D Do H E L n-φc
    GUQ-10(F) 10 55 40 153 105 84 4-φ6.6
    GUQ-16(F) 16 60 45 155 130 84 4-φ6.6
    GUQ-25(F) 25 70 55 163 165 114 4-φ6.6
    GUQ-32(F) 32 90 70 180 165 140 4-φ9
    GUQ-40(F) 40 100 80 186 190 160 4-φ9
    GUQ-50(F) 50 110 90 233 190 170 4-φ9
    GUQ-63(F) 63 130 110 272 250 195 4-φ9
    GUQ-80(F) 80 145 125 351 250 203 8-φ9
    GUQ-100(F) 100 165 145 370 280 280 8-φ9

    快卸法蘭連接結構圖

    快卸法蘭連接的外形及連接尺寸(mm) (GB4982)

    Model型号 DN D1 D H E L
    GUQ-10(KF) 10 12.2 30 153 104 84
    GUQ-16(KF) 16 17.2 30 155 104 84
    GUQ-25(KF) 25 26.2 40 163 140 114
    GUQ-32(KF) 32 34.2 55 180 140 140
    GUQ-40(KF) 40 41.2 55 186 140 160
    GUQ-50(KF) 50 52.2 75 233 164 170
     

    聲明:【GUQ氣動高真空球閥】規格型号、結構尺寸由上海凱利科閥門有限公司提供,如何選擇适用的GUQ氣動高真空球閥産品,使之在工藝控制中安全可靠、經濟适用,可緻電我司銷售部門及技術部門,我們将在最短的時間内爲您解答!

    

    Copyright ©2011-2023 上海凱利科閥門有限公司,版權所有。 京ICP證000000号

    銷售電話:021-31001158

    手機号碼:13816746668 陳國輝/經理

    電子郵件:klkvalves@126.com@126.com

    主營産品:球閥,閘閥,蝶閥,截止閥,止回閥,調節閥

    本周熱門:不鏽鋼阻火器全天候呼吸閥氣動球閥氣動蝶閥氣動刀閘閥氣動調節閥電動球閥電動蝶閥電動刀閘閥電動調節閥不鏽鋼球閥不鏽鋼閘閥不鏽鋼截止閥不鏽鋼止回閥不鏽鋼電磁閥高壓電磁閥高壓球閥波紋管截止閥

    官方網址:www.fm058.com