首頁
公司介紹
新聞中心
組織機構
服務理念
售後服務
聯系我們
産品中心
jtgk.png

産品中心

Q11F二片式球閥

您的位置:閥門 - 球閥 - Q11F二片式球閥 更新時間:2026-01-12 02:01:09
Q11F二片式球閥
    • 質量安全:壓力、材質、密封等全方位檢測确保質量過關!
    • 價格比較:在相同品質的情況下,廠裏直銷,更具有優勢!
    • 交貨快捷:常規産品現貨供應,生産加工銷售一條龍服務!
      上海凱利科閥門緻力于高品質閥門的設計、研發、生産銷售服務于一體的大型閥門企業,科技創新,永不止步,與您攜手共創輝煌...

    • 産品描述
    • 在線詢價
    • 技術咨詢
    Q11F二片式球閥Q11F二片式球閥

    Q11F二片式球閥适用于PN1.0~6.4MPa,工作溫度-29~180℃(密封圈爲增強聚四氟乙烯)或-29~300℃(密封圈爲對位聚苯)的各種管路上,用于截斷或接通管路中的介質。選用不同的材質可分别适用于水、蒸汽、油品、硝酸、醋酸等多種介質。

    産品名稱: 二片式球閥 産品型号: Q11F
    公稱通徑: DN6~DN100 結構形式: 球形
    公稱壓力: 1.6Mpa~6.4Mpa(W.O.G) 連接方式: 内螺紋
    适用溫度: -20~232℃~350℃ 驅動方式: 手動、電動、氣動
    閥體材質: 鑄鋼、不鏽鋼 制造标準: 國标GB、德國DIN、美國API、ANSI
    适用介質: 水、油、氣及某些腐蝕性液體 生産廠家: 上海凱利科閥門有限公司

    産品說明

    Q11F二片式球閥适用于PN1.0~6.4MPa,工作溫度-29~180℃(密封圈爲增強聚四氟乙烯)或-29~300℃(密封圈爲對位聚苯)的各種管路上,用于截斷或接通管路中的介質。選用不同的材質,可分别适用于水、蒸汽、油品、硝酸、醋酸等多種介質。

    産品特點

    Q11F二片式球閥閥體鑄造采用台灣引進的先進工藝,結構合理、造型美觀。閥座采用彈性密封結構,密封可靠,啓閉輕松。 閥杆采用有倒密封的下裝式結構,閥腔異常升壓時,閥杆不會被沖出。二片式、三片式球閥連接形式另有對焊(BW)承插焊(SW),并均可帶國際标準ISO支架平台和鎖定裝置。可設置90°開關定位機構,根據需要加鎖以防止誤操作,驅動方式:手動、電動、氣動。

    産品特征

    公稱壓力 适用介質 适用穩定範圍 螺紋類型
    1.6-6.4MPa 水、油、氣及某些腐蝕性液體(W。O。G) -20~232℃~350℃ G。NPT。BSPT。BSP。DI259/2999

    主要技術參數

    公稱通徑 DN(mm) 6~100mm
    公稱壓力 PN(MPa) 2.5 4.0 6.4
    試驗壓力 強度試驗壓力 3.8 6.0 9.6
    高密封試驗壓力 3.0 4.8 7.6
    低壓氣密封試驗壓力 0.6 0.6 0.6
    适用介質 水、蒸汽、油品、酸類腐蝕性等。
    适用溫度 < 150℃(PTFE) < 300℃(PLL)

    主要零件材料

    NO 零件名稱 PART NAME 材料(MATERIAL)
    1 閥體 Body CF8M CF8 WCB
    2 閥蓋 Cap CF8M CF8 WCB
    3 閥座 Seat RPTFE
    4 Ball SS304 SS316
    5 密封墊 Seal Gasket PTFE
    6 閥杆密封 Stem Seal PTFE
    7 閥杆 Stem SS316
    8 閥杆填料 Stem Packing PTFE
    9 填料壓蓋 Packing gland SS304
    10 彈性墊圈 Spring washer SS301
    11 手柄 Handle SS304
    12 螺母 Stem Nut SS304

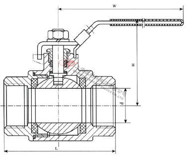
    外形結構圖

     

    外形連接尺寸

    公稱通徑 結構長度(mm) 外形尺寸(mm) 參考重量
    毫米 英寸 L d H W (kg)
    6 1/4" 55  10  42 95 0.2
    10 3/8" 55 10 42 95 0.2
    15 1/2" 64 15 51 108 0.35
    20 3/4" 75 20 58 115 0.5
    25 1" 85 25 77 135 0.75
    32 1-1/4" 102 32 83 150 1.3
    40 1-1/2" 108 38 97 175 2.0
    50 2" 124 50 106 190 3.3
    65 2-1/2" 163 65 122 220 6.1
    80 3" 185 80 133 250 9.9

    聲明:【Q11F二片式球閥】規格型号、結構尺寸由上海凱利科閥門有限公司提供,如何選擇适用的Q11F二片式球閥産品,使之在工藝控制中安全可靠、經濟适用,可緻電我司銷售部門及技術部門,我們将在最短的時間内爲您解答!

    

    Copyright ©2011-2023 上海凱利科閥門有限公司,版權所有。 京ICP證000000号

    銷售電話:021-31001158

    手機号碼:13816746668 陳國輝/經理

    電子郵件:klkvalves@126.com@126.com

    主營産品:球閥,閘閥,蝶閥,截止閥,止回閥,調節閥

    本周熱門:不鏽鋼阻火器全天候呼吸閥氣動球閥氣動蝶閥氣動刀閘閥氣動調節閥電動球閥電動蝶閥電動刀閘閥電動調節閥不鏽鋼球閥不鏽鋼閘閥不鏽鋼截止閥不鏽鋼止回閥不鏽鋼電磁閥高壓電磁閥高壓球閥波紋管截止閥

    官方網址:www.fm058.com